Objektart
Adresse
Objektdaten
Informationen
Ausstattung
Details
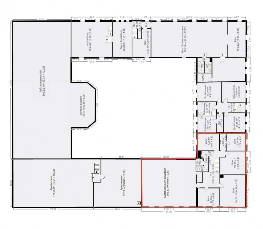
Dieses gepflegte Büroobjekt zur Miete bietet großzügige 260 m² auf 7 Räume verteilt. Es zeichnet sich durch seine charmante Kombination aus historischem Flair und modernem Komfort aus.
- Fünf Büros und eine großzügige Ausstellungsfläche
- Bodenbeläge aus eleganten Dielen und funktionalen Fliesen
- Außenstellplätze für Ihre Mitarbeiter oder Besucher
- Praktischer Abstellraum für Bürobedarf oder Archivmaterial
- Gäste-WC für Ihre Besucher
- Einbauküche, perfekt für Pausen oder Besprechungen
- Das Gebäude steht unter Denkmalschutz und bietet somit eine einzigartige Arbeitsatmosphäre
- Zentralheizung mit Gasversorgung gewährleistet eine effiziente und komfortable Temperaturregelung das ganze Jahr über
Dieses Büro überzeugt nicht nur durch seine Größe und Aufteilung, sondern auch durch die hervorragende Ausstattung und die verkehrstechnisch günstige Lage in Krefeld (direkte Autobahn-Anbindung). Hier arbeiten Sie in einem Umfeld, das sowohl funktional als auch inspirierend ist.
Diese Immobilie befindet sich am Rande einer ruhigen Wohngegend von Krefeld, die sowohl die Vorzüge des Stadtlebens als auch die Ruhe des Vororts bietet. Zudem ist der Forstwald fußläufig zu erreichen. Die Lage ist ideal für Berufstätige, die eine gute Anbindung an das Stadtzentrum sowie an umliegende Städte schätzen.
- Eine schnelle Autobahnanbindung ermöglicht es Ihnen, den Flughafen oder Düsseldorf in 20 Minuten bequem zu erreichen.
- Nur wenige Gehminuten von öffentlichen Verkehrsmitteln entfernt, die eine bequeme Verbindung ins Stadtzentrum von Krefeld und zu nahegelegenen Städten wie Düsseldorf und Duisburg bieten.
- In unmittelbarer Nähe finden Sie eine Vielzahl von Einkaufsmöglichkeiten, Restaurants und Cafés, die für jeden Geschmack etwas bieten.
Diese hervorragende Lage kombiniert Komfort, Konnektivität und Lebensqualität mit ländlicher Idylle.
Der Makler-Vertrag mit uns kommt durch schriftliche Vereinbarung oder durch die Inanspruchnahme unserer Maklertätigkeit auf der Basis des Objekt-Exposés und seiner Bedingungen zustande. Eine Anmietung ist für den Mieter provisionspflichtig. Durch den Nachweis oder die Vermittlung eines Miet- oder Pachtvertrages durch Janßen & Cie Real Estate GmbH wird die Provision fällig und beträgt 2 Nettomonatsmieten zzgl. 19% MwSt.
Die Angaben zum Objekt erfolgen im Namen unseres Auftraggebers und dienen einer ersten Information. Für die Richtigkeit und Vollständigkeit wird keine Haftung übernommen.
Ich bin damit einverstanden, dass mir Karten von Google angezeigt werden. Es gelten die Datenschutzbedingungen von Google (https://policies.google.com/privacy).
Ich bin einverstanden